HOME-Au
HOME-Au
24h
24h
USA
USA
GOP
GOP
Phim Bộ
Phim Bộ
Videoauto
VIDEO-Au
Home Classic
Home Classic
Donation
Donation
News Book
News Book
News 50
News 50
worldautoscroll
WORLD-Au
Breaking
Breaking
 

Go Back   VietBF > World Box| Thế Giới > Vietnam News | Tin Việt Nam > 2005-2023 Vietnam News


 
 
Thread Tools
  #1  
Old  Default Ngắm ngôi nhà độc, lạ, như đoàn tàu bên hồ ở Đắk Lắk
Thoạt nhìn ngôi nhà đã khiến người ta có cảm giác thật dễ chịu. Ngôi nhà như đoàn tàu nhỏ trên cao nguyên Đắk Lắk. Cùng ngắm nhìn ngôi nhà tuyệt đẹp này.



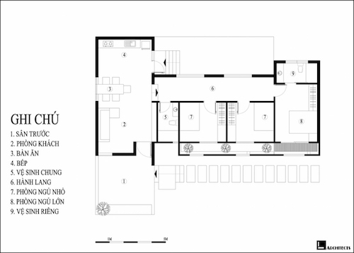
Ngôi nhà bên hồ xây một tầng, có diện tích mặt sàn 105 m2 nằm ven một thị xã nhỏ ở Đắk Lắk. Đây là nơi sinh sống của một chàng trai 8x độc thân cùng mẹ và em gái.



Chủ nhà yêu thích lối kiến trúc hiện đại, có phong cách riêng. Kiến trúc sư Lê Thanh Bình và các đồng nghiệp tại BL Architects đã giúp anh tạo nên một ngôi nhà với hình khối lạ mắt, màu sắc hiện đại nhưng vẫn thoải mái để sinh hoạt và nghỉ ngơi.



Tường và mái đều có một phần cắt vát hình tam giác. Tường nhà sơn màu trắng mang cảm giác hiện đại và trẻ trung.



Lối đi với các bậc đá trên thảm cỏ xanh, giống như đường ray tàu, dẫn đến bậc tam cấp để vào nhà. Không gian hướng hồ được cách điệu theo kiểu nhà sàn càng khiến ngôi nhà nổi bật.



Cửa sổ nhà với nhiều hình khối khác nhau, gây ấn tượng thị giác mạnh. Đây cũng là nơi chủ nhà ngồi ngắm bình minh hay hoàng hôn trên mặt hồ.



Mặt tiền nhà hướng Tây. Để giảm nắng nóng, nhóm thiết kế đã áp dụng giải pháp hai lớp tường. Giữa hai lớp tường là hành lang chạy dài dẫn đến các phòng ngủ, cũng là nơi đặt các chậu cây xanh, vừa giảm độ nắng gắt của buổi chiều, vừa giúp trang trí nhà.



Phòng ngủ cũng như đa số các không gian khác sử dụng nhiều nội thất gỗ mang lại cảm giác ấm cúng.



Không gian sinh hoạt chung gồm phòng khách, phòng ăn và bếp được thiết kế liên thông nhau, tạo cảm giác rộng rãi cũng như tăng cường sự kết nối của các thành viên trong gia đình.



Bàn ăn bằng gỗ được đặt bên cửa sổ, giúp chủ nhà vừa tận hưởng những bữa ăn ngon vừa được dễ dàng ngắm nhìn thiên nhiên bên ngoài.



Khung cửa sổ hình tròn ở không gian sinh hoạt chung. Nơi đây được bố trí nhiều cửa sổ để lấy sáng và gió tự nhiên cũng như mang đến độ thoáng cho ngôi nhà



Mặt bằng bố trí theo chiều ngang khu đất nhằm hướng tối đa các phòng có view ra mặt hồ.
VIETBF Diễn Đàn Hay Nhất Của Người Việt Nam

HOT NEWS 24h

HOT 3 Days

NEWS 3 Days

HOT 7 Days

NEWS 7 Days

HOME

Breaking News

VietOversea

World News

Business News

Car News

Computer News

Game News

USA News

Mobile News

Music News

Movies News

History

Thơ Ca

Sport News

Stranger Stories

Comedy Stories

Cooking Chat

Nice Pictures

Fashion

School

Travelling

Funny Videos

Canada Tin Hay

USA Tin Hay

VietBF Homepage Autoscroll

VietBF Video Autoscroll Portal

Home Classic

Home Classic Master Page



nguoiduatinabc
R10 Vô Địch Thiên Hạ
Release: 03-09-2019
Reputation: 22128


Profile:
Join Date: Apr 2016
Posts: 81,603
Last Update: None Rating: None
Attached Thumbnails
Click image for larger version

Name:	f1.jpg
Views:	0
Size:	159.1 KB
ID:	1347136   Click image for larger version

Name:	f2.jpg
Views:	0
Size:	254.1 KB
ID:	1347137   Click image for larger version

Name:	f3.jpg
Views:	0
Size:	182.8 KB
ID:	1347138  

Click image for larger version

Name:	f4.jpg
Views:	0
Size:	50.4 KB
ID:	1347139   Click image for larger version

Name:	f5.jpg
Views:	0
Size:	134.8 KB
ID:	1347140   Click image for larger version

Name:	f6.jpg
Views:	0
Size:	31.7 KB
ID:	1347141  

Click image for larger version

Name:	f7.jpg
Views:	0
Size:	308.6 KB
ID:	1347142   Click image for larger version

Name:	f8.jpg
Views:	0
Size:	48.2 KB
ID:	1347143   Click image for larger version

Name:	f9.jpg
Views:	0
Size:	263.5 KB
ID:	1347144  

Click image for larger version

Name:	f10.jpg
Views:	0
Size:	25.9 KB
ID:	1347145   Click image for larger version

Name:	f11.jpg
Views:	0
Size:	46.7 KB
ID:	1347146  
nguoiduatinabc_is_offline
Thanks: 168
Thanked 5,399 Times in 4,374 Posts
Mentioned: 4 Post(s)
Tagged: 0 Thread(s)
Quoted: 29 Post(s)
Rep Power: 92
nguoiduatinabc Reputation Uy Tín Level 7nguoiduatinabc Reputation Uy Tín Level 7
nguoiduatinabc Reputation Uy Tín Level 7nguoiduatinabc Reputation Uy Tín Level 7nguoiduatinabc Reputation Uy Tín Level 7nguoiduatinabc Reputation Uy Tín Level 7nguoiduatinabc Reputation Uy Tín Level 7nguoiduatinabc Reputation Uy Tín Level 7nguoiduatinabc Reputation Uy Tín Level 7nguoiduatinabc Reputation Uy Tín Level 7nguoiduatinabc Reputation Uy Tín Level 7nguoiduatinabc Reputation Uy Tín Level 7nguoiduatinabc Reputation Uy Tín Level 7nguoiduatinabc Reputation Uy Tín Level 7nguoiduatinabc Reputation Uy Tín Level 7
 
User Tag List


IKEA khai trương cửa hàng đầu tiên ở New Zealand: Người Kiwi xếp hàng từ tờ mờ sáng Nước Mỹ không dung dưỡng kẻ vô ơn: Tị nạn, di dân và cơn giận của Donald Trump Dư âm Giáng Sinh Sài Gòn xưa: Từ mùa sao sáng đến thánh ca buồn
Lê Duẩn – Mao Trạch Đông và cái giá “lá chắn phương Nam” của Việt Nam Trung Quốc hủy 540.000 vé sang Nhật: Đòn răn đe hay cú “tự bắn vào chân”? Trump xóa bỏ tiêu chuẩn nhiên liệu thời Biden
Mỹ đã hiểu sai tham vọng của Đảng Cộng sản Trung Quốc và đánh giá thấp sự quyết liệt tàn nhẫn của họ Tị nạn, thẻ xanh, visa du học cùng bị “khóa cửa” Khi bia Mexico gặp búa trừng phạt di trú của Trump: Cú ngã đau của đế chế Modelo – Corona
Biển số 37.77: Thông điệp ngầm của Thủ tướng Nhật Takaichi Sanae gửi Bắc Kinh Quốc tịch Mỹ: Tường thành gần như tuyệt đối cho người nhập tịch Con gái Hà Nội, giọt nước dưới mặt lá
Những tay giang hồ miền Nam: huyền thoại, bóng tối và cái giá phải trả Huỳnh Điều – “anh lớp Ba” mà Cộng sản sợ cái miệng hơn sợ khẩu M.79 Tiếng súng 9 giờ sáng ở Florida và hành trình cuối của nữ deputy Terri Sweeting-Mashkow
“Giang sơn” nào được sắp xếp, và sắp xếp cho ai? Sau 40 tuổi, khuôn mặt là “bản lý lịch” của tâm hồn Siêu biệt phủ trăm tỷ của Chủ tịch phường Hải Phòng: “Đại Lộc Thiên tử” giữa làng nghèo
Từ vụ sạc 24 giờ ở Mỹ đến chết yểu ở Ấn Độ: VinFast và câu hỏi dành cho người Việt Khi chú Hòa xây nhà bình dân: những kiệt tác âm thầm giữa lòng Sài Gòn Việt Nam – Xứ sở của những người bị bắt phải học nghề đói
Mailisa bị bắt và ký ức đôi vợ chồng ăn chay đi chùa Đi Hàn, đi Nhật rồi nhìn lại Việt Nam: yêu nước đâu chỉ nói trên môi Nepal – Đất nước sống ở năm 2082 giữa trái tim Himalaya
Nicholas Winton – Người hùng thầm lặng cứu 669 đứa trẻ khỏi bóng đen Đức Quốc Xã Bi kịch giáo sư Yoshihiro Sato: khi dữ liệu đẹp đổi lấy danh dự và cái chết Sự ngu dốt của bọn có học – từ Nguyễn Huy Thiệp đến thời những lời nói lật ngược sự thật

 
Lên đầu Xuống dưới Lên 3000px Xuống 3000px

iPad Videos Portal Autoscroll

VietBF Music Portal Autoscroll

iPad News Portal Autoscroll

VietBF Homepage Autoscroll

VietBF Video Autoscroll Portal

USA News Autoscroll Portall

VietBF WORLD Autoscroll Portal

Home Classic

Super Widescreen

iPad World Portal Autoscroll

iPad USA Portal Autoscroll

Phim Bộ Online

Tin nóng nhất 24h qua

Tin nóng nhất 3 ngày qua

Tin nóng nhất 7 ngày qua

Tin nóng nhất 30 ngày qua

Albums

Total Videos Online
Lên đầu Xuống dưới Lên 3000px Xuống 3000px

Tranh luận sôi nổi nhất 7 ngày qua

Tranh luận sôi nổi nhất 14 ngày qua

Tranh luận sôi nổi nhất 30 ngày qua

10.000 Tin mới nhất

Tin tức Hoa Kỳ

Tin tức Công nghệ
Lên đầu Xuống dưới Lên 3000px Xuống 3000px

Super News

School Cooking Traveling Portal

Enter Portal

Series Shows and Movies Online

Home Classic Master Page

Donation Ủng hộ $3 cho VietBF
Lên đầu Xuống dưới Lên 3000px Xuống 3000px
Diễn Đàn Người Việt Hải Ngoại. Tự do ngôn luận, an toàn và uy tín. Vì một tương lai tươi đẹp cho các thế hệ Việt Nam hãy ghé thăm chúng tôi, hãy tâm sự với chúng tôi mỗi ngày, mỗi giờ và mỗi giây phút có thể. VietBF.Com Xin cám ơn các bạn, chúc tất cả các bạn vui vẻ và gặp nhiều may mắn.
Welcome to Vietnamese American Community, Vietnamese European, Canadian, Australian Forum, Vietnamese Overseas Forum. Freedom of speech, safety and prestige. For a beautiful future for Vietnamese generations, please visit us, talk to us every day, every hour and every moment possible. VietBF.Com Thank you all and good luck.

Lên đầu Xuống dưới Lên 3000px Xuống 3000px

All times are GMT. The time now is 03:03.
VietBF - Vietnamese Best Forum Copyright ©2005 - 2025
User Alert System provided by Advanced User Tagging (Pro) - vBulletin Mods & Addons Copyright © 2025 DragonByte Technologies Ltd.
Log Out Unregistered

Page generated in 0.10683 seconds with 13 queries